Laser Scanning at The Exchange

Client
Savills
Delivery
February 2026
Project Type
Laser Scanning
Location
Aberdeen, Scotland

Scope

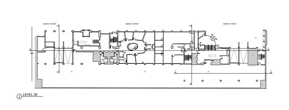
Savills instructed us to undertake a Measured Building Survey of The Exchange Buildings 1 and 2 in Aberdeen. Given the scale of the site (five floors in Building 1, eight in Building 2 and a car park spanning two floors) the survey was completed over 10 days. The required deliverables included 2D DWG floor plans for each level, along with elevation and section drawings for both buildings.

Laser scanning at the exchange

Solution

Our survey team worked methodically through both buildings, completing the survey on a floor‑by‑floor basis. Although automated floorplan extraction features within TBC were initially explored, they did not provide the accuracy or reliability needed for this project.

To ensure high quality results, we opted to use the Trimble X7 rather than the RS10. While the X7 produced a significantly larger dataset (with a file size of almost 250GB), it offered superior detail and confidence in the captured scans, enabling efficient refinement during postprocessing. As the deliverables were limited to 2D outputs, we completed rapid, colourfree scans to maximise onsite efficiency.

In addition, a drone survey was conducted, using the DJI Mini 4, to capture comprehensive data for the roofs of both buildings.

Laser scanning at the exchange 2

Benefits

  • Rapid, colour‑free scanning for maximum time efficiency
  • Multiple high‑quality deliverables
  • Detailed, reliable datasets supporting accurate 2D outputs

This was an interesting project to carry out of an iconic part of the Aberdeen skyline. Our team take the next step in laser scanning by combining the traditional with the new, bringing together the efficiencies of rapid data collection with the accuracy of traversed networks to provide datasets our clients can rely on.

Have a new project we can assist with? Get in touch here.

PREVIOUS